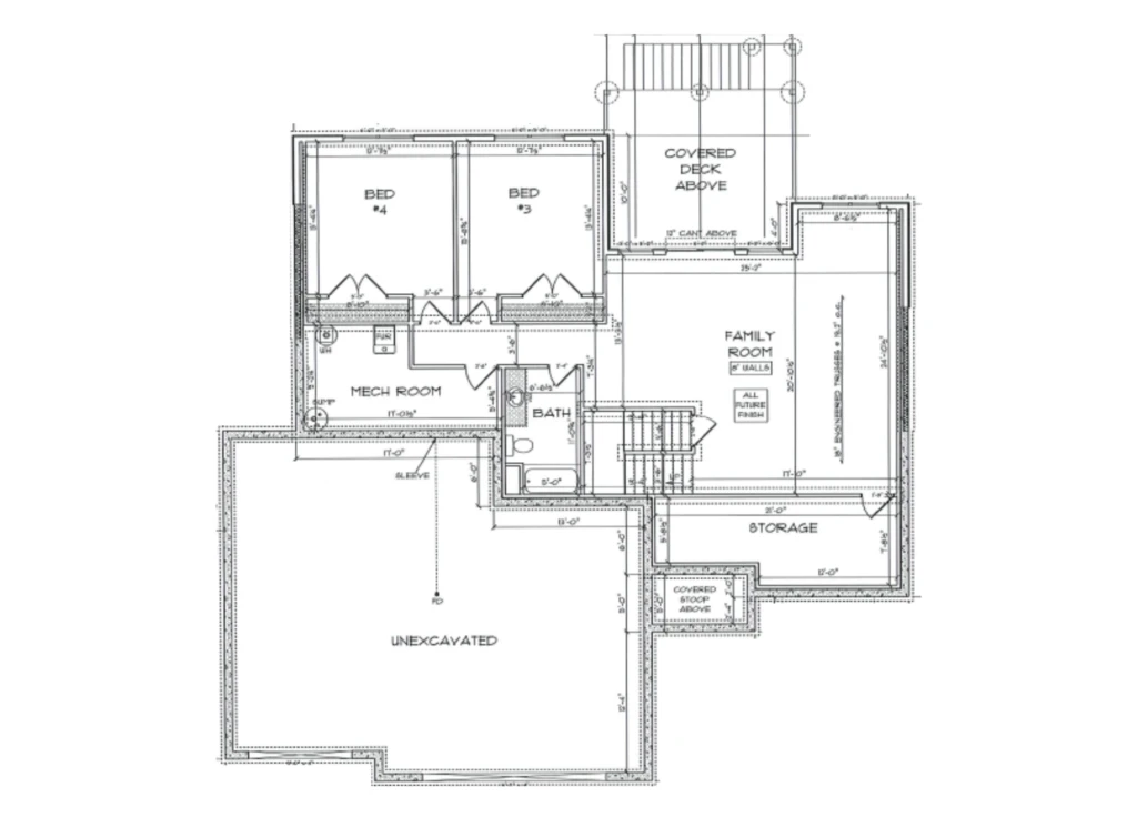
Van Buskirk Construction has finished up a new residential home here in Sioux Falls that hit the market just a few weeks ago! Adding to the lineup of VBC residential homes, this two bedroom, two bathroom walkout house comes with a three-car garage, 1,572 sq ft finished on the main level with an unfinished lower level that includes two additional bedrooms, a full bath, and family room.
Located on the east side of Sioux Falls in the Willow Ridge neighborhood development, it sits in the Brandon School District just blocks from Fred Assam Elementary School and Willow Ridge Park. This home is nestled perfectly between Sioux Falls and Brandon with easy access to shopping, dining, and major roadways.


The home features an open floor plan with main floor laundry, a covered deck, and large master suite with a large walk-in closet, sitting on a quarter acre lot. Built with quality craftsmanship you can rely on for many years to come, it’s suitable for an array of lifestyles and home functionality.
Whether you are a family looking to grow into a home or just looking to invest in a home you can build equity in, this home could be the perfect fit for many. Build equity when you finish the lower level with 2 more bedrooms, another bathroom, and additional living space! The possibilities are endless, giving you the opportunity to make it uniquely yours.
Be sure to check it out at the upcoming open house on Sunday, March 17th from 12:00PM – 1:30PM at 512 Willow Creek Ave. Sioux Falls, SD 57110!